We create effective communications, design and architecture. See more >>

A new home replacing
an old life

ARCHITECTURE.

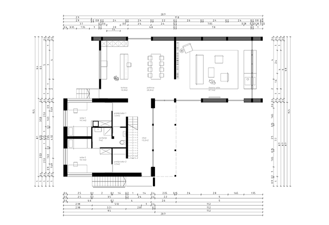
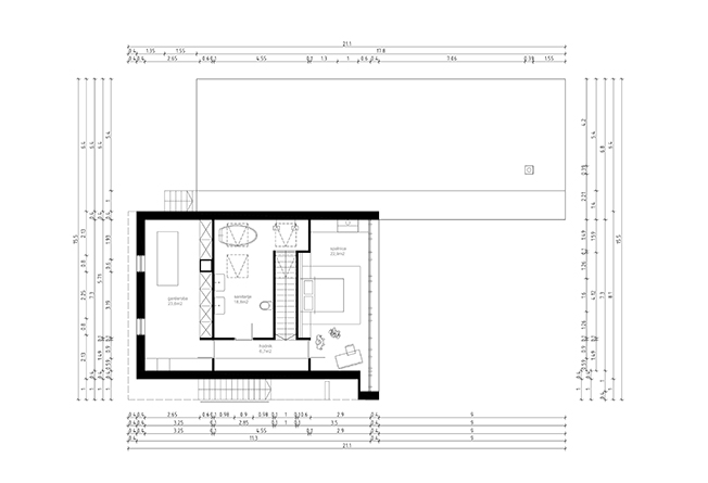
Building area: 417 m2
Site area: 3.100 m2
Program: residential
Author: REPUBLIKA™

We enjoyed working on a particulary interesting task of implementing a new pavilion-like architecture in a beautiful small town.

The connection between the exterior and interior through the open facades and the horizontal penetrations of the walls at the height of the roof makes the building look and feel airy and light.

Back

About REPUBLIKA

We are committed to providing our customers with the best solutions, offering tailor-made service across various fields such as architecture, interior design, graphic design, and more.

To ensure optimal results, we assemble a skilled team of professionals to collaborate effectively on each project.

REPUBLIKA™ is a registered trade mark.

All-around

Contact