We create effective communications, design and architecture. See more >>

Suburban house

ARCHITECTURE. INTERIOR.

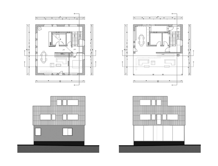
Building area: 110m2
Site area: 850m2
Program: residential
Author: REPUBLIKA™

On the outskirts of the city’s hustle and bustle, a young family envisioned building a home that would offer both modern comfort and a deep connection to nature. We worked with them to bring this vision to life, designing a space that blends the sleek, urban aesthetic with the natural beauty that surrounds it. The result is a home where contemporary living meets the tranquility of the outdoors, creating a harmonious balance between the built environment and nature.

Modern style as a contrast to the nature.

Back

About REPUBLIKA

We are committed to providing our customers with the best solutions, offering tailor-made service across various fields such as architecture, interior design, graphic design, and more.

To ensure optimal results, we assemble a skilled team of professionals to collaborate effectively on each project.

REPUBLIKA™ is a registered trade mark.

All-around

Contact